Choosing the right granny flat floor plan determines whether your backyard build feels spacious and functional or cramped and awkward. Melbourne blocks vary dramatically in size, shape and constraints, making floor plan selection critical rather than optional. The wrong layout creates wasted space, poor flow and daily frustration for occupants, whilst the right design maximises every square metre within your available footprint.
Understanding which granny flats Melbourne designs suit specific block configurations helps you avoid expensive redesigns when builders assess your property. This guide compares four proven floor plans, explaining which block types each suits and why certain layouts work where others fail.

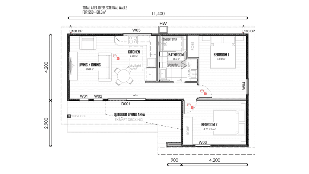
Stella: The L-Shape Solution for Corner Blocks
The Stella floor plan delivers 60m² across an L-shaped footprint measuring 11.4m x 4.2m along one axis and extending 2.9m perpendicular. This configuration suits corner blocks or properties where standard rectangular designs consume excessive yard space.
The L-shape positions two bedrooms along one wing whilst living, kitchen and bathroom occupy the perpendicular section. This natural zoning separates sleeping areas from active living spaces, creating privacy impossible in linear layouts. An outdoor living area integrates into the L’s interior angle, providing sheltered entertaining space that feels like an extension of internal rooms.
Corner block owners in established Melbourne suburbs particularly benefit from Stella’s design. The layout tucks neatly into property boundaries whilst maintaining generous setbacks and preserving usable yard space that rectangular designs sacrifice. Properties in Boroondara, Whitehorse and Bayside councils where corner blocks are common find Stella’s geometry solves placement challenges that force other designs into compromised positions.
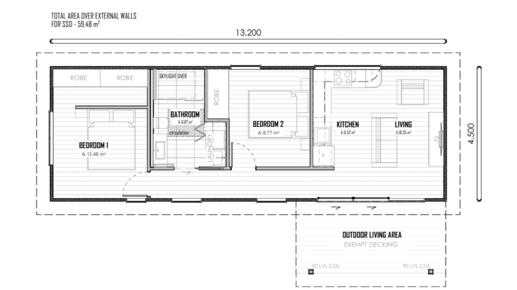
Aurora: The Narrow Design for Tight Access

Aurora’s long, narrow footprint (13.2m x 4.5m) addresses Melbourne’s most challenging block constraint: limited width. Properties with side access, battleaxe blocks or skinny rear yards require designs that run parallel to boundaries rather than consuming width.
The linear layout positions both bedrooms at one end with walk-in robes providing buffer zones. The central bathroom includes skylight illumination compensating for limited external wall access. Kitchen and living areas occupy the opposite end, opening to outdoor decking via full-height glazing that negates the psychological narrowness.
This floor plan suits properties in growth corridors where blocks increasingly feature constrained dimensions. Casey, Cardinia and Wyndham councils see numerous developments with tight rear yards where Aurora’s 4.5m width fits comfortably within setback requirements whilst standard 6-10m wide designs fail entirely.

Lana: The Balanced Standard for Most Blocks
Lana’s 10m x 6m rectangular footprint represents the versatile standard that suits approximately 60-70% of Melbourne suburban blocks. Two bedrooms positioned at opposite ends flank central living, kitchen and bathroom spaces, creating intuitive flow and natural privacy zoning.
The balanced proportions allow flexible placement on typical residential blocks. Whether positioned parallel or perpendicular to boundaries, Lana maintains comfortable setbacks whilst preserving yard usability. This adaptability suits blocks from 450m² upward in most Melbourne councils where standard dimensions predominate.
For families building granny flats for elderly parents or creating rental income opportunities, Lana delivers proven functionality without geometric complications. The straightforward layout simplifies council approvals whilst the familiar room arrangement appeals to broadest occupant demographics.

Lana 2: The Dual Bathroom Upgrade
Lana 2 builds on Lana’s proven layout by adding a second bathroom within the same 60m² footprint. This modification transforms shared accommodation viability, addressing the primary limitation of single-bathroom designs when housing multiple occupants requiring genuine privacy.
The dual-bathroom configuration suits families with multigenerational living arrangements where elderly parents and adult children share the granny flat temporarily. Each bedroom gains dedicated bathroom access, eliminating morning conflicts and providing dignity for older occupants who value private facilities.
Properties targeting premium rental markets also benefit from Lana 2’s configuration. Professional sharers or relocated executives willing to pay premium rents specifically seek dual-bathroom accommodation, making this layout command $30-$50 weekly rental premiums over single-bathroom equivalents.
Matching Floor Plans to Block Dimensions
Block suitability depends on more than simple area calculations. Shape, access and setback requirements determine which designs actually fit versus theoretically fitting.
Blocks under 450m² with narrow proportions (under 15m width) typically require Aurora’s linear design. Standard Lana layouts struggle on these constrained sites, forcing compromises that reduce functionality. Corner blocks regardless of size suit Stella’s L-configuration, maximising usable outdoor space whilst the granny flat occupies boundary zones.
Blocks exceeding 600m² with regular proportions provide flexibility for any floor plan. These properties allow optimal solar orientation and placement considering privacy from main houses. The choice becomes lifestyle-driven rather than constraint-driven, focusing on occupant needs rather than geometric limitations.
Your Next Steps to Floor Plan Selection
Choosing between Stella, Aurora, Lana and Lana 2 requires understanding your block’s specific constraints and intended use cases. Book a free site assessment where we evaluate which floor plans suit your property’s dimensions, access and council requirements.
Contact Innovista Group to discuss floor plan modifications addressing specific needs. Whilst these four designs suit most Melbourne properties, custom options address unusual block geometries or particular functional requirements standard layouts don’t accommodate.
Ready to see these floor plans in context? Our Bayswater North display showcases Lana’s layout with both Affordable and Signature finishes, helping you understand how different package levels transform the same fundamental design.